槽式給料機概述
槽式給料機又稱往復式給料機或擺式給料機,是一種運輸機械的輔助設備,它適用于短矩離,按一定量輸送小塊而比重較大的金屬、非金屬物料的短距離運輸。

槽式給料機用途
南通聯振重工機械有限公司制造生產的槽式給料機廣泛應用于冶金、化工、煤炭、礦山及水利水電工程等部門,將塊狀及顆粒物料由貯料倉給料,送到各種不同的受料裝置。
槽式給料機可以架設于地面,也可以吊裝在礦倉卸料口上。槽底板作往復運動,其沖次為 20-60 次/min, 沖程為20-200mm。沖程可由驅動裝置偏心輪進行適當調整,偏心距為沖程之半。
技術參數
| 型 號 | 400×1200 | 500×1200 | 600×1450 | 750×1650 | 900×2100 |
| 往復板寬度(mm) | 400 | 500 | 600 | 750 | 900 |
| 往復板長度(mm) | 1200 | 1200 | 1450 | 1650 | 2100 |
| 出料口高度(mm) | 450 | 550 | 650 | 750 | 800 |
| 往復次數(次/rain) | 48.5 | 48.5 | 48.5 | 48.5 | 48.5 |
| 可調行程(mm) | 10-80 | 10-80 | 10-80 | 20-80 | 20-80 |
| Zui大粒度(mm) | 150 | 175 | 200 | 250 | 300 |
| 物料堆比重(t/m3) | 2.6 | 2.6 | 2.6 | 2.6 | 2.6 |
| 額定給料量(m3/h) | 3.6-29.3 | 5.6-44.8 | 7.9-63.6 | 22.948 | 33-132 |
| 電機功率(kw) | 1.5 | 1.5 | 3 | 5.5 | 7.5 |
| 外形尺寸(長×寬×高)(mm) | 2300×800×775 | 2300×800×825 | 2670×1000×925 | 2180×1210×1120 | 3700×1370×1320 |
| 設備重量(kg) | 870 | 960 | 1130 | 1900 | 2450 |
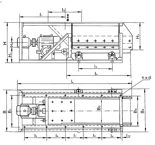
結構示意圖

| 型 號 | H | H1 | H2 | H3 | B | B1 | B2 | B3 | B4 | L | I1 |
| CG400×1200 | 725 | 277 | 100 | 450 | 790 | 520 | 400 | 470 | 800 | 2300 | 1190 |
| CG500×1200 | 825 | 277 | 100 | 550 | 890 | 620 | 500 | 570 | 900 | 2300 | 1090 |
| CG600×1450 | 925 | 298 | 132 | 650 | 990 | 720 | 600 | 680 | 1000 | 2670 | 1050 |
| CG750×1650 | 1116 | 391 | 132 | 750 | 1200 | 864 | 750 | 810 | 1210 | 3176 | 1560 |
| CG900×2100 | 1315 | 475 | 160 | 900 | 1350 | 1014 | 900 | 960 | 1364 | 3700 | 1530 |
| 型 號 | I2 | I3 | I4 | I5 | I6 | I7 | I8 | I9 | I10 | n×D |
| CG400×1200 | 800 | 550 | 1200 | 620 | 470 | 470 | 290 | 40 | 10×M20 | |
| CG500×1200 | 800 | 550 | 1200 | 570 | 470 | 470 | 330 | 40 | 10×M20 | |
| CG600×1450 | 900 | 750 | 1450 | 350 | 500 | 500 | 710 | 40 | 10×M20 | |
| CG750×1650 | 1000 | 900 | 1650 | 700 | 580 | 580 | 790 | 50 | 10×M20 | |
| CG900×2100 | 1200 | 1100 | 2100 | 740 | 620 | 620 | 620 | 620 | 50 | 10×M24 |







蘇公網安備 32062102000295號